义承金川府售楼处电话丨义承金川府值得买吗丨营销中心预约接待丨得房率-价格-电话-地铁-交房时间-户型图-更新资讯

搜狐焦点西双版纳站 2025-10-08 12:51:00
用手机看
扫描到手机,新闻随时看

扫一扫,用手机看文章
更加方便分享给朋友

义承金川府售楼处电话为✅:0871-64635667【预约热线】 案场预约制 看房需提前来电预约登记 温馨提示:点击上方号码可直接拨打电话 请务必致电与销售确认时间,本项目暂不接受临时到访,感谢您的支持

义承金川府

义承金川府售楼处电话为✅:0871-64635667【预约热线】

案场预约制 看房需提前来电预约登记

温馨提示:点击上方号码可直接拨打电话

请务必致电与销售确认时间,本项目暂不接受临时到访,感谢您的支持

【义承金川府】

高新一小已签约,教育配套持续升级中

全自有资金开发|

1T2品质洋房,无连廊|

超高得房率近0公摊|

约1.83超低容积率|

即买即住即办证 |

今年买明年入读高新一小

一、项目基础信息

【开发商】义承置业

【区域板块】五华区西北新城

【容积率】1.83

【物业类型】1T2洋房,1T2叠墅

【装修情况】毛坯

【产权性质】住宅产权,70年

【物业公司】承义物业

【物业费】洋房2.6;叠墅3.8

【在售产品】建面约89-123㎡低密花园洋房;建面约140-232㎡高拓展城市叠墅

二、义承置业

三、住金川府读高新一小,今年买明年读

高新一小,西市最强小学

家校一体:学校更好,学校就在小区里,无需接送,真正实现家校0距离,每天全家人多睡半小时

今年买今年上:2024年12月学校施工开启;2025年9月,学校正式开学

四、昆明最卷园林,社区天然大氧吧

约1.83超低容积率

超4000万园林造景成本

约7.7万方游历式山水园林

约30米奢阔楼间距

全冠移植,单棵最高约38万

121种特色景观苗木

约20000㎡城市绿地公园

五、片区改善最佳楼盘,主城低密现房

1T2纯板洋房,无连廊设计

主城墅质洋房/叠墅

建筑高度不超过36米,规划10-12层洋房

六、片区产品最抗打,超高得房

89㎡≈115㎡;98㎡≈135㎡;123㎡≈165㎡

建面约89㎡户型相当于市场上建面约115㎡户型产品;建面约98㎡户型相当于市场上建面约135㎡户型产品;建面约123㎡户型相当于市场上建面约165㎡户型。低公摊高得房,同等面积更低价格,更大享受。

七、保值先锋,重磅配套持续升级中

与市面上的期房相比,我们的洋房/叠墅品质现房呈现,无需等待,即买即住即办证;与传统的高层筒子楼相比,我们是主城难得的纯低密墅质洋房/叠墅,最高36米建筑高度,是片区产品天花板。后期将引入知名中学配套,教育配套持续升级兑现。A1地块即将重磅推新,高层住宅,超高赠送面积,多重游园式主题景观,是您的资产配置首选。

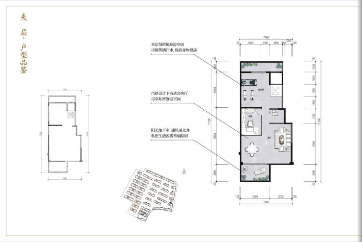
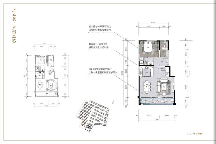
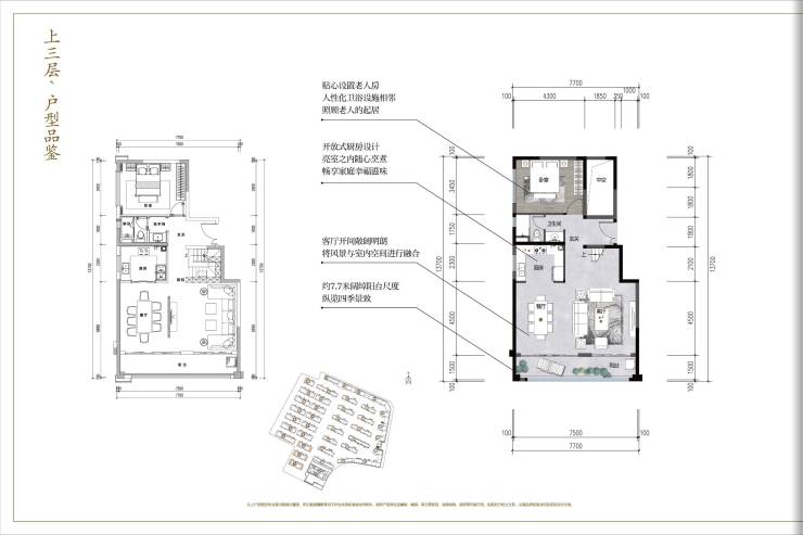
八、在售产品鉴赏

义承金川府售楼处电话为✅:0871-64635667【预约热线】

案场预约制 看房需提前来电预约登记

温馨提示:点击上方号码可直接拨打电话

请务必致电与销售确认时间,本项目暂不接受临时到访,感谢您的支持

声明:本文由入驻焦点开放平台的作者撰写,除焦点官方账号外,观点仅代表作者本人,不代表焦点立场。