昆明海荣滇池澜庭楼盘最新消息-优缺点-户型图-降价了吗-房价-对口学校-交房时间-别名-售楼处电话
扫描到手机,新闻随时看
扫一扫,用手机看文章
更加方便分享给朋友
海荣滇池澜庭
海荣滇池澜庭售楼处电话为✅:0871-64635667【预约热线】
案场预约制 看房需提前来电预约登记
温馨提示:点击上方号码可直接拨打电话
请务必致电与销售确认时间,本项目暂不接受临时到访,感谢您的支持
【开发商】海荣集团
【总占地】67亩
【建面】201485.24㎡
【物业】万科物业
【物业费】2.36元/㎡
【容积率】3.5
【绿地率】37%
【在售地块】一期7,12栋;二期2、6栋
【在售产品】住宅
【在售面积】
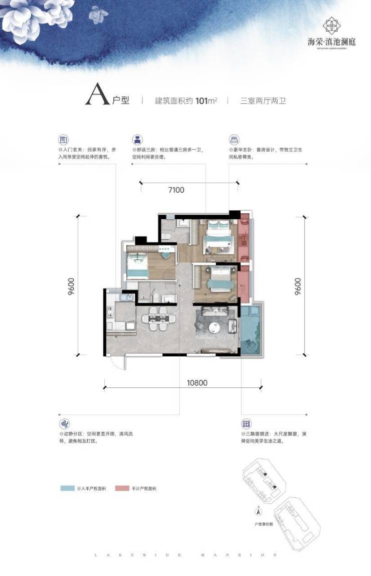
2栋:中户:101 、108 、 131㎡
7栋:中户:108㎡;端户:128㎡
12栋:中户:111㎡;端户:131㎡
6栋:中户:111㎡;端户:131㎡
【总楼栋层高】15层/25层/30层/28层
【T户比】7栋、12、6栋2T4户; 2栋 2梯5户
【装修标准】毛坯
【交房时间】一期25年3月,二期25年9月
距滇池约1km 高端人居代名词
六大湿地公园环伺 乐享生态宜居
项目周边生态资源优越,捞鱼河湿地公园、斗南湿地公园、滇池生态湿地公园、王官湿地公园、海东湿地公园等六大湿地公园将项目环保其中,出门即湿地;滇池环湖生态带6.29万亩,土地不可复制,资源不可再生,一席难求,值得珍藏。
与地铁距离约50米 真正的地铁物业
项目距地铁4号线梅子村站约50米,真正地铁物业,无缝畅达主城、机场、高铁站,交通优势明显,生活畅达自如,出行无忧,高效串联全城。
六大商圈环伺 吃喝玩乐购无忧
两公里内辐射万达广场、七彩云南第壹城、吾悦广场、沃尔玛生活广场、金龙农贸市场、斗南花卉市场等六大商圈,自配超约12万方商业,未来将依托海荣品牌资源,打造国际化商街,不仅满足社区需求,更将为片区商业加码。
民大附小旁 出家门入校门
甲级医院保障 24小时健康守护
项目东侧约2公里,位于富康路上建有昆明市延安医院呈贡医院(呈贡区人民医院:二甲医院)。项目东侧约5公里,位于春融东路上还建有昆明医科大学第一附属医院(云大医院:三甲医院)。项目东南侧约5公里处,位于联大街上还建有昆明市中医医院(三甲医院)、昆明城东医院。健全三甲医疗配套,24小时守护全家人的健康。

围合式布局规划景 超大楼间距
滇池澜庭采用板式围合建筑布局,大面积中庭景观,以宽阔楼间距让空间顺应自然的呼吸、光照与取景,舒适、愉悦的空间,风、光、景的设计,大幅度提高房屋的采光与通风,入目所及皆满园绿意与生机。
海荣滇池澜庭售楼处电话为✅:0871-64635667【预约热线】
案场预约制 看房需提前来电预约登记
温馨提示:点击上方号码可直接拨打电话
请务必致电与销售确认时间,本项目暂不接受临时到访,感谢您的支持海荣滇池澜庭
海荣滇池澜庭售楼处电话为✅:0871-64635667【预约热线】
案场预约制 看房需提前来电预约登记
温馨提示:点击上方号码可直接拨打电话
请务必致电与销售确认时间,本项目暂不接受临时到访,感谢您的支持
【开发商】海荣集团
【总占地】67亩
【建面】201485.24㎡
【物业】万科物业
【物业费】2.36元/㎡
【容积率】3.5
【绿地率】37%
【在售地块】一期7,12栋;二期2、6栋
【在售产品】住宅
【在售面积】
2栋:中户:101 、108 、 131㎡
7栋:中户:108㎡;端户:128㎡
12栋:中户:111㎡;端户:131㎡
6栋:中户:111㎡;端户:131㎡
【总楼栋层高】15层/25层/30层/28层
【T户比】7栋、12、6栋2T4户; 2栋 2梯5户
【装修标准】毛坯
【交房时间】一期25年3月,二期25年9月
距滇池约1km 高端人居代名词
六大湿地公园环伺 乐享生态宜居
项目周边生态资源优越,捞鱼河湿地公园、斗南湿地公园、滇池生态湿地公园、王官湿地公园、海东湿地公园等六大湿地公园将项目环保其中,出门即湿地;滇池环湖生态带6.29万亩,土地不可复制,资源不可再生,一席难求,值得珍藏。
与地铁距离约50米 真正的地铁物业
项目距地铁4号线梅子村站约50米,真正地铁物业,无缝畅达主城、机场、高铁站,交通优势明显,生活畅达自如,出行无忧,高效串联全城。
六大商圈环伺 吃喝玩乐购无忧
两公里内辐射万达广场、七彩云南第壹城、吾悦广场、沃尔玛生活广场、金龙农贸市场、斗南花卉市场等六大商圈,自配超约12万方商业,未来将依托海荣品牌资源,打造国际化商街,不仅满足社区需求,更将为片区商业加码。
民大附小旁 出家门入校门
甲级医院保障 24小时健康守护
项目东侧约2公里,位于富康路上建有昆明市延安医院呈贡医院(呈贡区人民医院:二甲医院)。项目东侧约5公里,位于春融东路上还建有昆明医科大学第一附属医院(云大医院:三甲医院)。项目东南侧约5公里处,位于联大街上还建有昆明市中医医院(三甲医院)、昆明城东医院。健全三甲医疗配套,24小时守护全家人的健康。

围合式布局规划景 超大楼间距
滇池澜庭采用板式围合建筑布局,大面积中庭景观,以宽阔楼间距让空间顺应自然的呼吸、光照与取景,舒适、愉悦的空间,风、光、景的设计,大幅度提高房屋的采光与通风,入目所及皆满园绿意与生机。
海荣滇池澜庭售楼处电话为✅:0871-64635667【预约热线】
案场预约制 看房需提前来电预约登记
温馨提示:点击上方号码可直接拨打电话
请务必致电与销售确认时间,本项目暂不接受临时到访,感谢您的支持
声明:本文由入驻焦点开放平台的作者撰写,除焦点官方账号外,观点仅代表作者本人,不代表焦点立场。
