西双版纳傣江南·滨江锦苑楼盘详情-2026官方聚焦:售楼处电话→楼盘详情 -配套-电话-交房时间-配套-电话-交房时间
扫描到手机,新闻随时看
扫一扫,用手机看文章
更加方便分享给朋友
西双版纳【傣江南·滨江锦苑】开发商电话 13308815411 【营销中心】
欢迎来电咨询〢尊享内部优惠服务〢免费看房车接送〢
版纳购房政策-贷款政策-最新价格-剩余房源-周边配套-项目答疑-楼盘情况
傣江南·滨江锦苑 | 江幕无界 版纳封面
建面约59-135㎡瞰江头排华宅
傣江南·滨江锦苑项目简介
傣江南·滨江锦苑占地45亩,容积率约3.2,绿化率30%,分南北地块建设,雄踞版纳一线江景,极目无遮挡视野,呈现惊艳版纳的一线瞰江峯景,项目配套傣江南商业街(已建成),通过精妙设计筑就
户户观江的绝妙体验,错过即绝版——项目地址:西双版纳景洪市嘎兰北路1号
项目基本信息
【项目名称】傣江南·滨江锦苑
【开发商】景洪市城市投资开发有限公司
【占地面积】约45亩
【梯户比】2T6、3T8
【停车位】526个(北地块440个,南地块86个)标配充电车位
【产权年限】70年产权
【总户数】1238
【付款方式】一次性、商业按揭、公积金【物业】城投物业
【在售产品】59㎡-135㎡瞰江高层、190㎡滨江联排
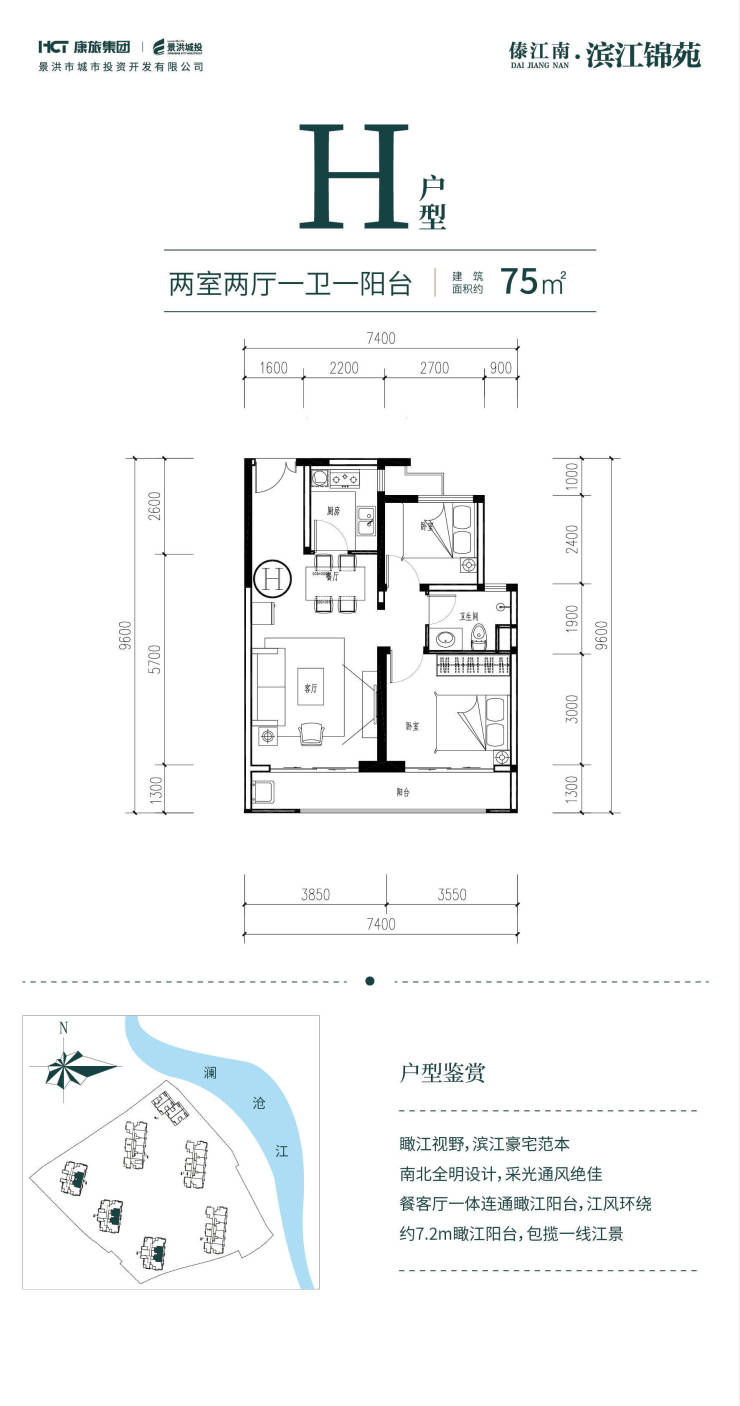
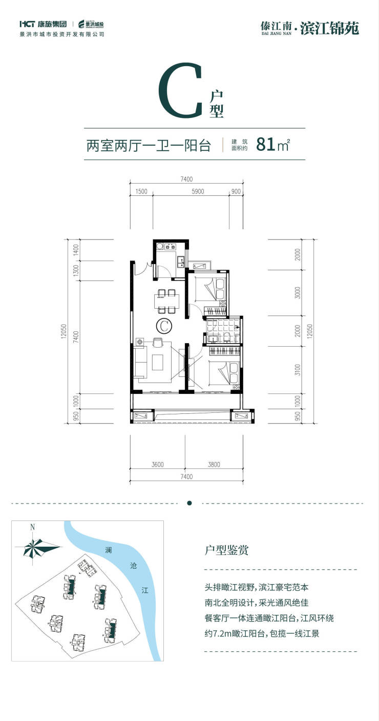
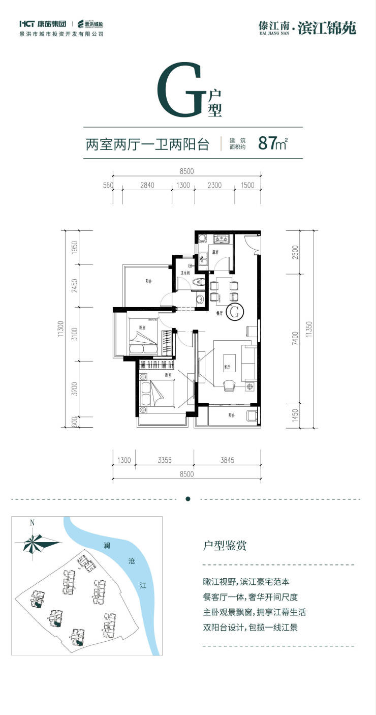
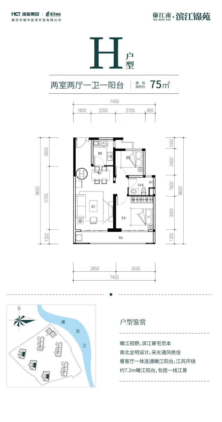
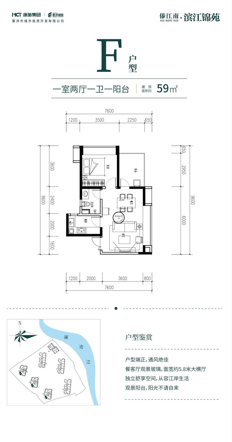
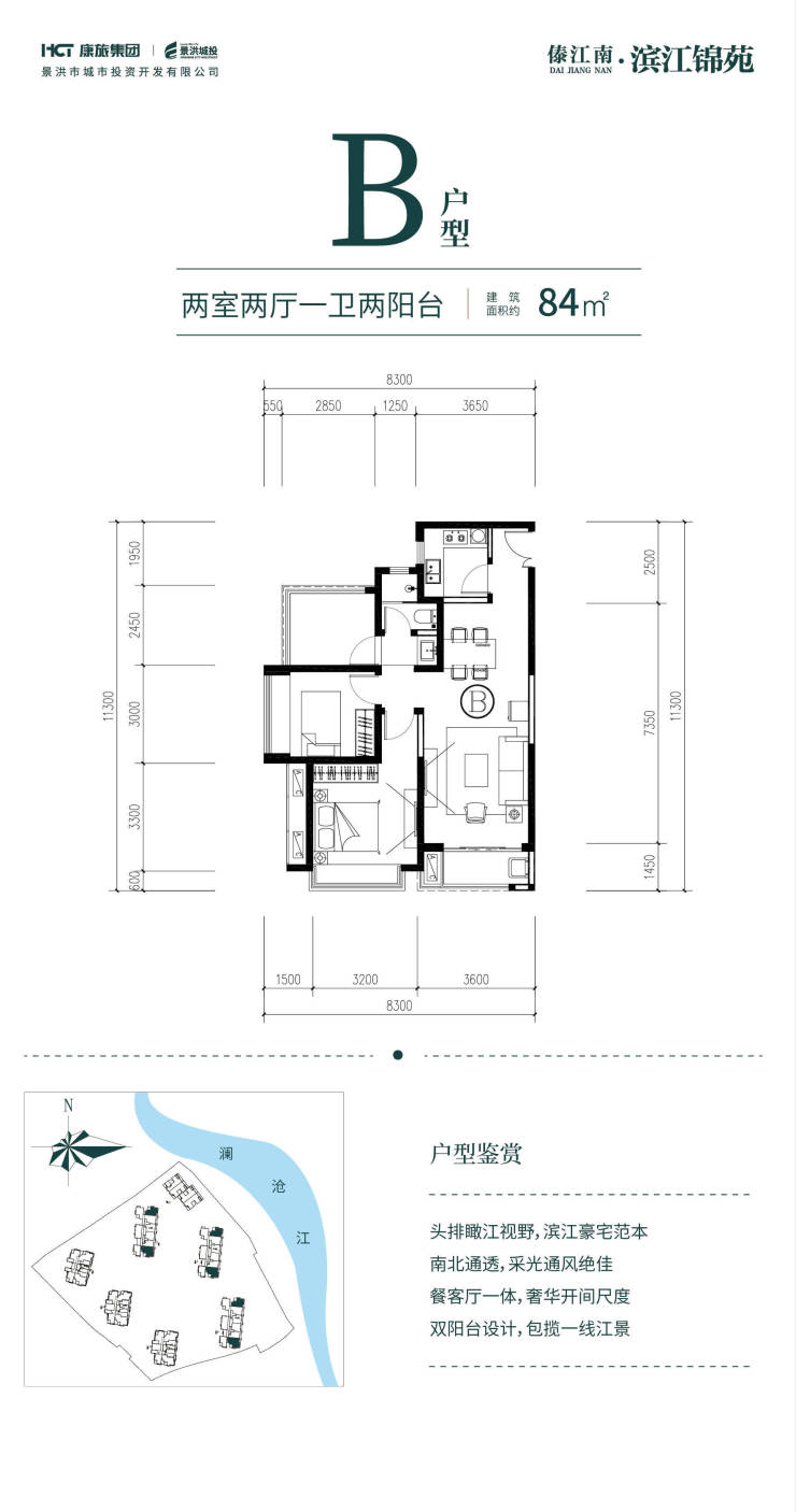
【热售户型】北地块 A/F 59㎡、H 75㎡、D/J 75㎡、C 81㎡、B 84㎡、G 87㎡、G1 90㎡、H1 125㎡、C1 135㎡

西双版纳【傣江南·滨江锦苑】置业经理电话:13308815411 【微信同号】
五锦价值体系
【傣江南·滨江锦苑】区位分析
东南亚经济桥头堡,中国南大门城市
物产资源丰富#全年均温约24°C#森林覆盖率高达80%#被誉为“动植物王国”
版纳主城核心,不可复制的优势地段
地处西双版纳景洪市的繁华市中心,被众多城市配套设施紧紧环绕:
一线江景临岸的稀缺资产
【傣江南·滨江锦苑】交通
立体交通路网,瞬息通达版纳全城
两大主干道形成一个便捷高效的交通立体路网,出门即可轻松通达全城各地。
勐泐大道直通嘎洒,迅速接轨世界各地
项目门前便是贯穿城市南北的勐泐大道,不仅直达景洪高铁站,还与嘎洒机场紧密相连,只需片刻即可切换视野,轻松连接世界。
【傣江南·滨江锦苑】教育配套
十五年一贯制公立教育环伺,护佑成长
项目周边十五年一贯制的公立学府林立,西双版纳州一中、景洪市一中等版纳本地口碑载道的中学,云南农业大学(西双版纳校区)、西双版纳州机关幼儿园、景洪市一小等优质教育资源环绕其间。为孩子的茁壮成长撑起一片天空。
西双版纳【傣江南·滨江锦苑】置业经理电话:13308815411 【微信同号】
【傣江南·滨江锦苑】医疗配套
三甲医院环顾周边,时刻守护家人健康项目坐拥优越的医疗环境:景洪市第一人民医院、西双版纳傣族自治州人民医院、西双版纳州妇幼儿童保健院等三甲医院环伺,让安心与健康常伴左右。
【傣江南·滨江锦苑】商业配套——多元商业荟萃,时刻接轨国际潮流
多元商业精彩纷呈,不仅满足日常生活所需,更让您时刻与国际潮流接轨,享受便捷、时尚的生活体验。
【傣江南·滨江锦苑】生态配套——澜沧江近在咫尺,诸多公园遍布周边
举步之间,便能领略到版纳本地丰富的文化底蕴与自然风光,为生活增添无限精彩。
西双版纳【傣江南·滨江锦苑】置业经理电话:13308815411 【微信同号】
【傣江南·滨江锦苑】项目介绍——精巧布局·精致规划·人车分流·南北分区
1.精巧布局:项目在布局上充分考虑了住户的居住体验和便利性,通过合理的空间规划和设计,使得整个小区看起来美观又实用。
2.精致规划:项目在规划上注重细节,从建筑外观到内部设计,都积极吸纳版纳本地元素,同时,项目还充分考虑了绿化和景观的打造,极力为住户提供一个舒适的生活环境。
3.人车分流:项目实现了人车分流的设计,车辆和行人在小区内各行其道,互不干扰。这样的设计不仅提高了安全性,还使得小区内的交通更加顺畅。
4.南北分区:项目在规划上采用了南北分区的理念,使得不同区域的住户能够享受到更好的采光和通风条件。同时,南北分区也有助于业主之间的圈层沟通,减少彼此噪音干扰,提高住户的居住舒适度。
【傣江南·滨江锦苑】户型介绍——建面约 59-135m²瞰江头排华宅|超大瞰江视野,无敌观景面
西双版纳【傣江南·滨江锦苑】开发商电话 13308815411 【营销中心】
欢迎来电咨询〢尊享内部优惠服务〢免费看房车接送〢
版纳购房政策-贷款政策-最新价格-剩余房源-周边配套-项目答疑-楼盘情况
声明:本文由入驻焦点开放平台的作者撰写,除焦点官方账号外,观点仅代表作者本人,不代表焦点立场。
