昆明义承金川府售楼处电话丨2026官网发布丨楼盘百科-环境-户型-价格 -地址-楼盘详情-配套-电话-交房时间
扫描到手机,新闻随时看
扫一扫,用手机看文章
更加方便分享给朋友
义承金川府
义承金川府售楼处电话为✅:0871-64635667【预约热线】
案场预约制 看房需提前来电预约登记
温馨提示:点击上方号码可直接拨打电话
请务必致电与销售确认时间,本项目暂不接受临时到访,感谢您的支持
【义承金川府】
高新一小已签约,教育配套持续升级中
全自有资金开发|
1T2品质洋房,无连廊|
超高得房率近0公摊|
约1.83超低容积率|
即买即住即办证 |
今年买明年入读高新一小
一、项目基础信息
【开发商】义承置业
【区域板块】五华区西北新城
【容积率】1.83
【物业类型】1T2洋房,1T2叠墅
【装修情况】毛坯
【产权性质】住宅产权,70年
【物业公司】承义物业
【物业费】洋房2.6;叠墅3.8
【在售产品】建面约89-123㎡低密花园洋房;建面约140-232㎡高拓展城市叠墅

二、义承置业
三、住金川府读高新一小,今年买明年读
高新一小,西市最强小学
家校一体:学校更好,学校就在小区里,无需接送,真正实现家校0距离,每天全家人多睡半小时
今年买今年上:2024年12月学校施工开启;2025年9月,学校正式开学
四、昆明最卷园林,社区天然大氧吧
约1.83超低容积率
超4000万园林造景成本
约7.7万方游历式山水园林
约30米奢阔楼间距
全冠移植,单棵最高约38万
121种特色景观苗木
约20000㎡城市绿地公园
五、片区改善最佳楼盘,主城低密现房
1T2纯板洋房,无连廊设计
主城墅质洋房/叠墅
建筑高度不超过36米,规划10-12层洋房
六、片区产品最抗打,超高得房
89㎡≈115㎡;98㎡≈135㎡;123㎡≈165㎡
建面约89㎡户型相当于市场上建面约115㎡户型产品;建面约98㎡户型相当于市场上建面约135㎡户型产品;建面约123㎡户型相当于市场上建面约165㎡户型。低公摊高得房,同等面积更低价格,更大享受。
七、保值先锋,重磅配套持续升级中
与市面上的期房相比,我们的洋房/叠墅品质现房呈现,无需等待,即买即住即办证;与传统的高层筒子楼相比,我们是主城难得的纯低密墅质洋房/叠墅,最高36米建筑高度,是片区产品天花板。后期将引入知名中学配套,教育配套持续升级兑现。A1地块即将重磅推新,高层住宅,超高赠送面积,多重游园式主题景观,是您的资产配置首选。
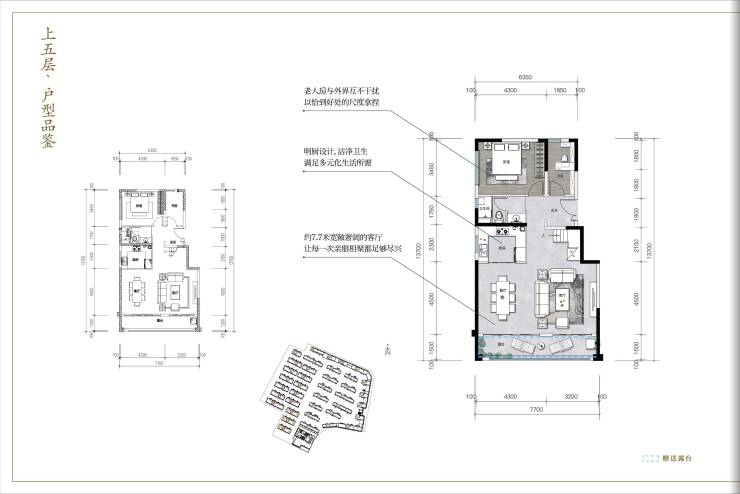
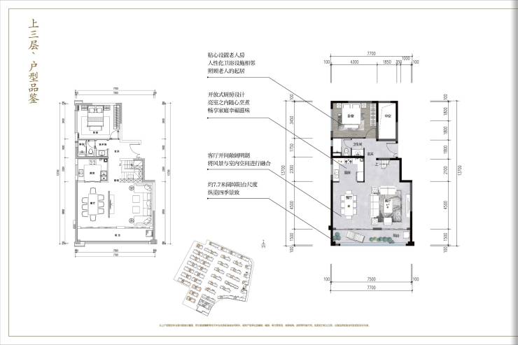
八、在售产品鉴赏



义承金川府售楼处电话为✅:0871-64635667【预约热线】
案场预约制 看房需提前来电预约登记
温馨提示:点击上方号码可直接拨打电话
请务必致电与销售确认时间,本项目暂不接受临时到访,感谢您的支持
声明:本文由入驻焦点开放平台的作者撰写,除焦点官方账号外,观点仅代表作者本人,不代表焦点立场。
