昆明【邦泰春华序】的房子能买吗-为什么便宜-属于哪个街道社区-户型图-交房时间位置-周边配套
扫描到手机,新闻随时看
扫一扫,用手机看文章
更加方便分享给朋友
邦泰春华序
邦泰春华序售楼处电话为✅:0871-64635667【预约热线】
案场预约制 看房需提前来电预约登记
温馨提示:点击上方号码可直接拨打电话
请务必致电与销售确认时间,本项目暂不接受临时到访,感谢您的支持
一、基础信息
【项目名称】邦泰春华序
【占地面积】约34.52亩
【容积率】约2.5
【绿地率】约40.01%
【建筑密度】约22%
【总楼栋】13栋
【层数】17F
【梯户比】2T2户
【总户数】408户
【交付标准】清水
【物业公司】邦泰物业(司雅服务体系)
二、 国际一线审美 | 此地彼方的艺术生活
融合垂直绿化、空中花园与人性化设计
将花园搬到空中,铸就未来品质人居新标杆
既有别墅花园的舒居感和松弛感,又有无界视野享受
三、环滇首个四代宅 | 启新空中生活想象
户户超130%实享率 (含电梯前室)
户户带约32-40㎡空中庭院 270°环幕视界
约6.2米结构挑高,奇偶错层打造,采光与观景兼得
墅级尺度,南向最大约18米超大面宽
隐私挡板重视每一户的私密性
四、呈贡封面作品 | 匠心精铸奢宅
立面设计与自然元素无缝融合
构筑起一座矗立于都市之中的“垂直森林”
大面积弧线形香槟金铝板,勾勒城市天际线
飞檐冠顶,檐角向上伸展的动态设计
既是和鸣在地人居情怀,又寓意着向上生长的力量
五、滇池畔·花都芯
城市南延核芯 | 宜居改善范本
千年春城“因滇而盛,依水而荣”
3000年滇池文化,铸就城市底蕴
极萃文生态价值,临滇稀缺土地
全国最大、世界第二的国际花都
千亿级花卉产业引擎,昆明向南发展的核芯腹地
六、2KM范围内满配生活圈
生态:距离滇池直线距离约1公里,1.5公里内享约千亩湿地公园(王官湿地、斗南湿地公园)
交通:三横三纵交通路网,地铁1/4号线在侧,距地铁4号线梅子村站(约500m),便捷通达全城
商圈:斗南花卉商圈、呈贡老城商圈,呈贡新城商圈(七彩云南第壹城、吾悦、万达广场等)、滇池会展商圈等
学校:“全龄优教生态圈”,斗南幼儿园、民大附小、呈贡第一、二、三小学、师大附小(建设中)、呈贡一中、云大附中(呈贡校区)等优教配套在侧;片区后续还将落地规划30班中学(具体公告以呈贡区教体局发布为准)
医院:多个三甲医院环伺:昆明市延安医院(呈贡医院)、昆明医科大学第一附属医院(呈贡院区)等
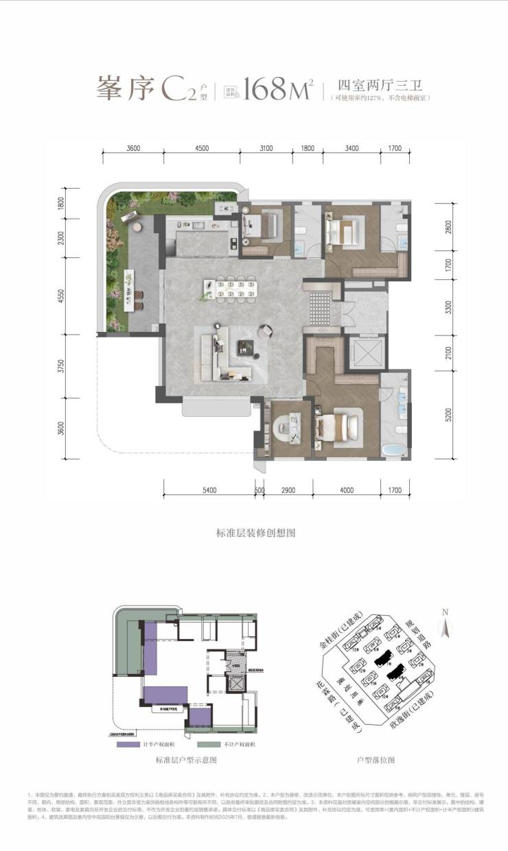
九、建面约127-168㎡第四代浮岛别院 户型鉴赏
邦泰春华序售楼处电话为✅:0871-64635667【预约热线】
案场预约制 看房需提前来电预约登记
温馨提示:点击上方号码可直接拨打电话
请务必致电与销售确认时间,本项目暂不接受临时到访,感谢您的支持
声明:本文由入驻焦点开放平台的作者撰写,除焦点官方账号外,观点仅代表作者本人,不代表焦点立场。
