昆明「大华翠湖映」售楼部电话|户型测评|楼盘口碑|10月最新消息

搜狐焦点西双版纳站 2025-10-13 12:30:00
用手机看
扫描到手机,新闻随时看

扫一扫,用手机看文章
更加方便分享给朋友

大华翠湖映售楼处电话为✅:0871-64635667【预约热线】 案场预约制 看房需提前来电预约登记 温馨提示:点击上方号码可直接拨打电话 请务必致电与销售确认时间,本项目暂不接受临时到访,感谢您的支持

大华翠湖映

大华翠湖映售楼处电话为✅:0871-64635667【预约热线】

案场预约制 看房需提前来电预约登记

温馨提示:点击上方号码可直接拨打电话

请务必致电与销售确认时间,本项目暂不接受临时到访,感谢您的支持

建筑面积约182-285㎡低密大平层

1、【项目基本信息】

【开发商】云南莲楹房地产开发有限公司

【占地面积】50亩

【总建筑面积】6.27方

【产品:】143-182-185-258-285㎡

【在售楼栋数】1.2.3.4栋

【规划总户数】227户

【车位配比】1:1.9

【停车位总数】437个(人防34个)

【容积率】2.88

【绿地率】4.77%

【公摊】15%

【得房率】88%

【物业公司】大华物业

【物业费】3.95元/㎡/月

【物业类型】精装大平层住宅

【产权年限】70年

【交房时间】现房

2、【区位优势】

板块内弥足珍贵的压轴之地

汇聚城市中最不可复制的珍稀资源,未来十年甚至更久,都难以再有项目能与之匹敌。

城央生态资源:翠湖公园、圆通山公园、莲花池公园三大生态公园

人文底蕴资源:博物馆群、云南省图书馆、云南歌舞剧院、云南美术馆等

名校名师资源:云大附小、师大附小、云大附中、昆一中、云南大学等20余所学府

高端商圈资源:翠湖、顺城、恒隆、同德等高端商圈

专业医疗资源:云大医院、昆华医院、云南省红十字会医院等多所三甲医院

3、【项目概述】

①区域内绝无仅有2.88低密豪宅

稀缺之至,罕见之作,项目距翠湖公园仅一公里,特邀大师团队呈现罕见的低密度珍品,尽享城市繁华与自然宁静的双重馈赠。

2.88央心极质低密

极致人均尊享份额

227席限量收藏

44.7%高绿化率

超宽楼间距日照充足

两梯两户尊贵入户

一字纯板房真南北通透

南向大面宽居住品质高

②大师甄选名贵草木 再现翠湖八景

特邀上海水石设计大师团队,通过巧妙提取经典元素“翠湖八景”和色彩,遍植全球甄选而来日本黑松、橄榄树、红豆杉、羽毛枫、清香木老桩等名贵草木,匹配居者的尊贵身份,达成与自然的深层连接。

③国际顶级品牌奢装,像艺术一样雕琢的空间

因为懂得,所以力求完美,精选德国、意大利高端品牌原装进口装配,极具独特工艺和美学价值的定制材料,让整屋独具匠心,历久弥新。

④壹号圈子,昆明塔尖圈层的尊贵入场券

千金买房,万金买邻,与谁为邻,影响着家庭的视野和格局。

【映会所】茶吧、红酒雪茄吧、健身房、桑拿房,酌翠堂私宴厅正式运营。

⑤传世资产 穿越时间周期

城市的中心土地资源不可再生,是让资产保值和升值的有力保障,决定了高端人居的保值基石与投资潜力,世代传承的不仅仅是居所,更是让家族荣耀与财富的延续,独享尊贵。

⑥品质交付 亲鉴更加安心

2025年1月已完成品质交付,实景现房呈现,所见即所得,美好无需等待。

4、【户型鉴赏】

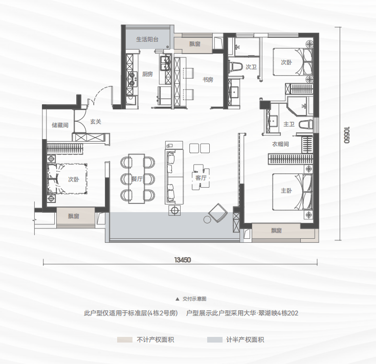
①【143㎡户型 仅余20席 珍贵难再有】

户型点评:

【非凡横厅 世家风范】阔尺多功能会客厅,阔境之上,彰显世家风范

【三开间朝南 全明通透】开间南向,全明通透,人与阳光自然相处

②【185㎡户型 270°环景边厅 全屋装标升级】

户型点评:

【全明户型 超尺双厅】270度采光面的转角边厅,贯通宽绰阳台,拥揽阳光与风景

【动静分区功能性强】厨房与餐厅形成游空间,LDK一体化设计,空间功能淋漓尽致

【全屋臻装升级世界一线】博世厨电、德系顶级品牌柏丽衣柜/玄关柜、唯宝卫浴(主卫)、高仪五金(主卫)、日本大金空调、史密斯净水,融合无可挑剔的精湛工艺,为品质生活加冕

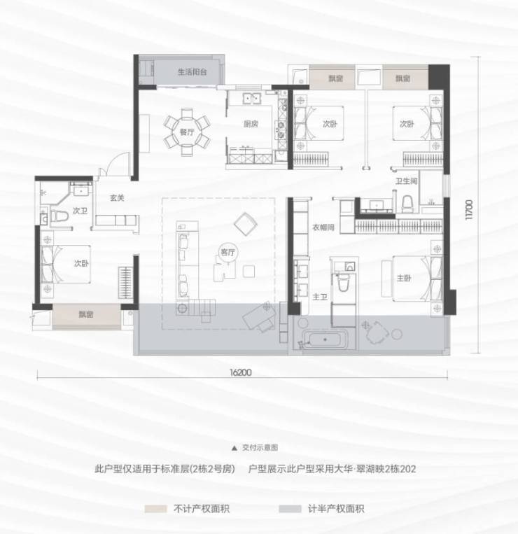
③【182㎡户型 仅有22席 压轴定制出品】

【南向横厅 格局豁达】约6米南向横厅,社交型会客厅

【南北通透 日照充足】双阳台,四开间朝南,全屋采阳均衡

④【285㎡户型 社交型鼎豪大平层】

户型点评:

【极尺宽厅 豁达视野】270°采光IMAX方厅匹配主人气度无界会客、居家

【可游动线 灵活高效】全屋可洄游式布局,家务、宴请、会客动线各自独立环绕

⑤【260㎡户型 终极改善家庭之选】

户型点评:

【奢阔玄关 尊崇入户】巴西进口高定奢石,让每一次出入尽享尊崇礼遇

【巨幕横厅 大家风范】约7.7米巨幕横厅,登人生质感,瞰他人未见之境

大华翠湖映售楼处电话为✅:0871-64635667【预约热线】

案场预约制 看房需提前来电预约登记

温馨提示:点击上方号码可直接拨打电话

请务必致电与销售确认时间,本项目暂不接受临时到访,感谢您的支持

声明:本文由入驻焦点开放平台的作者撰写,除焦点官方账号外,观点仅代表作者本人,不代表焦点立场。